Дизайн-проекты ФКГС 2025 год
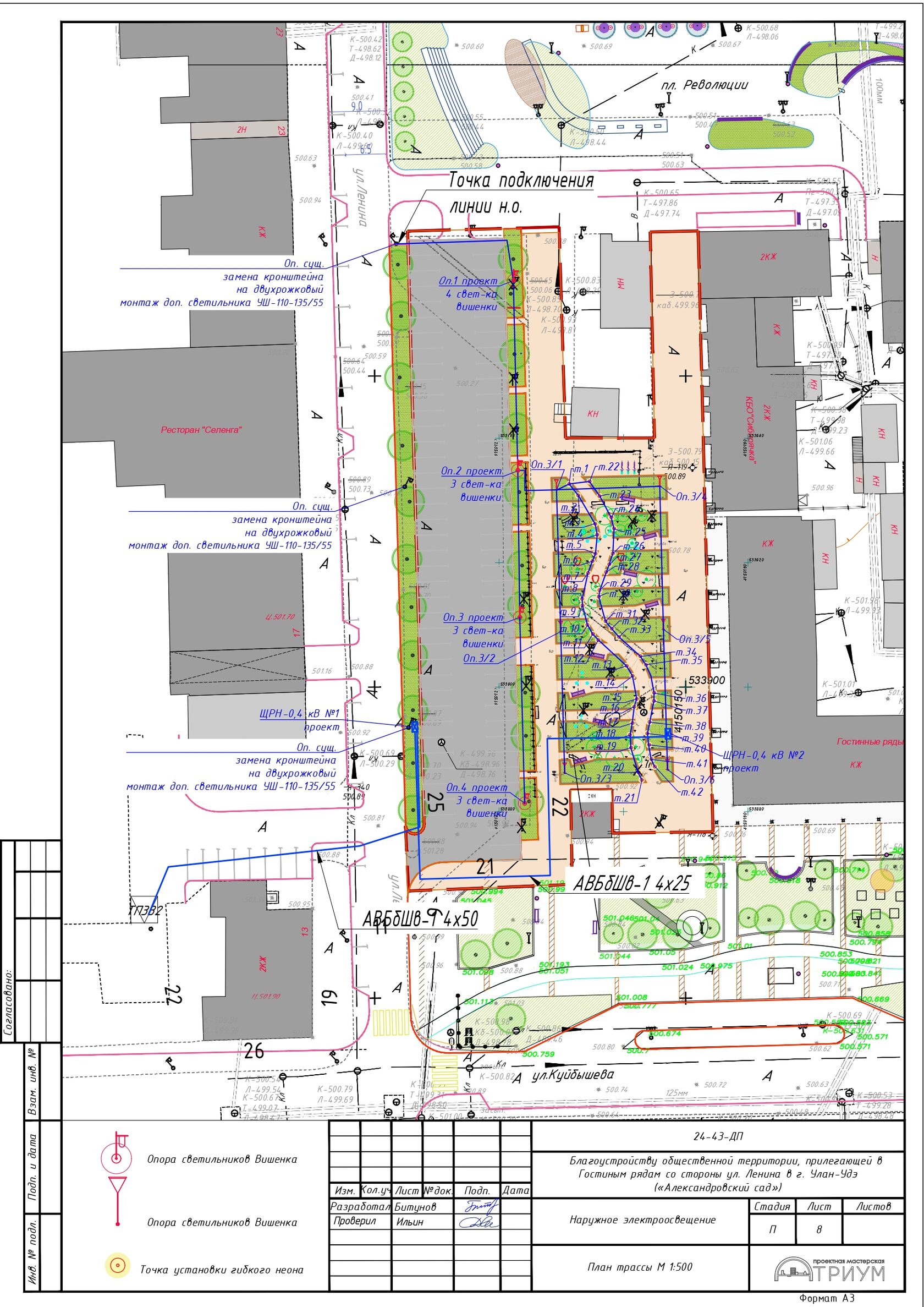
Общественная территория г. Улан-Удэ, "Александровский сад""
2025-06-11 12:37
г. Улан-Удэ