Дизайн-проекты Дальневосточные дворы 2025 год
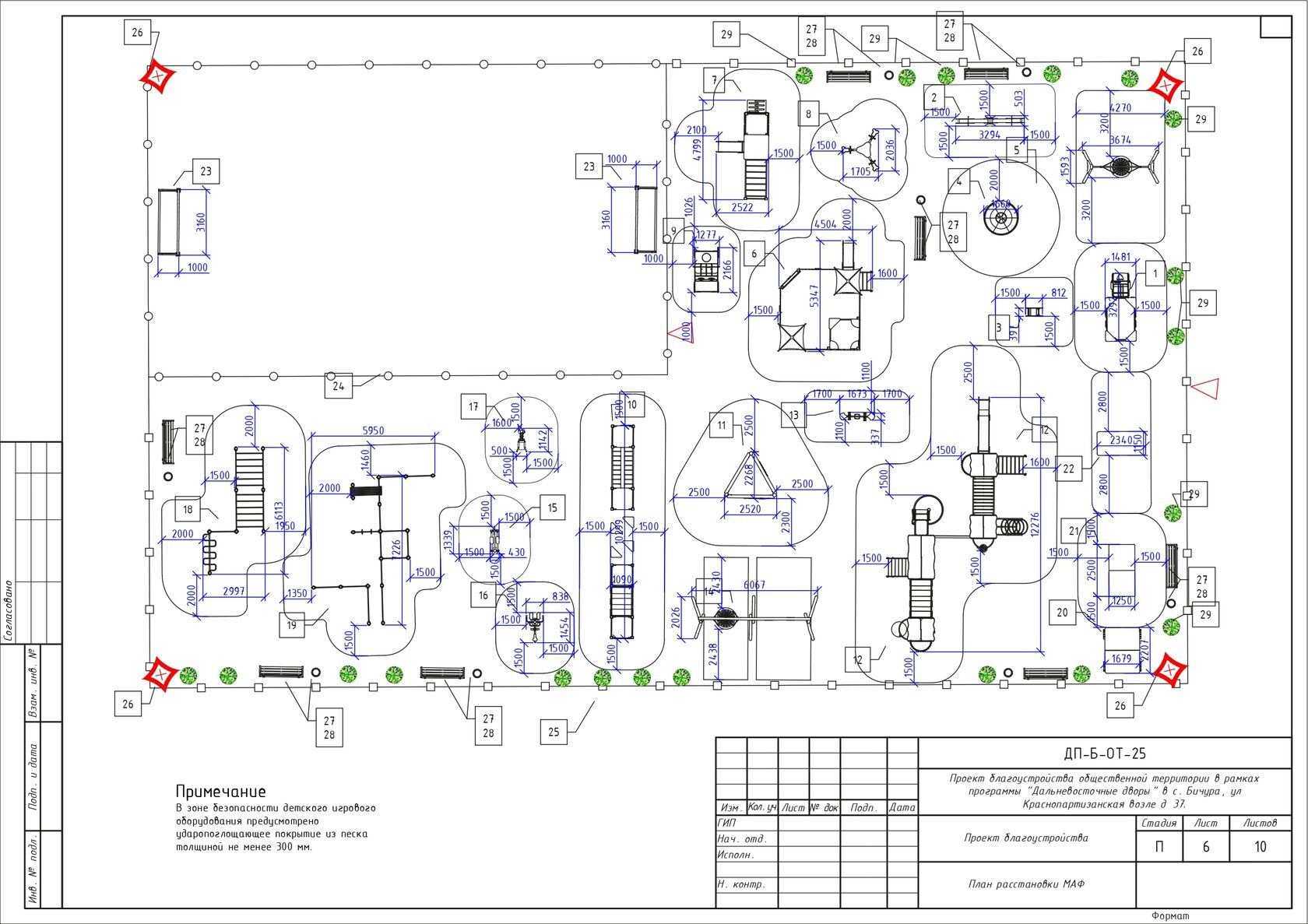
Бичурский район, с. Бичура, ул. Красноармейская, возле дома 37
2025-09-10 15:20
2025 год