Дизайн-проекты Дальневосточные дворы 2025 год
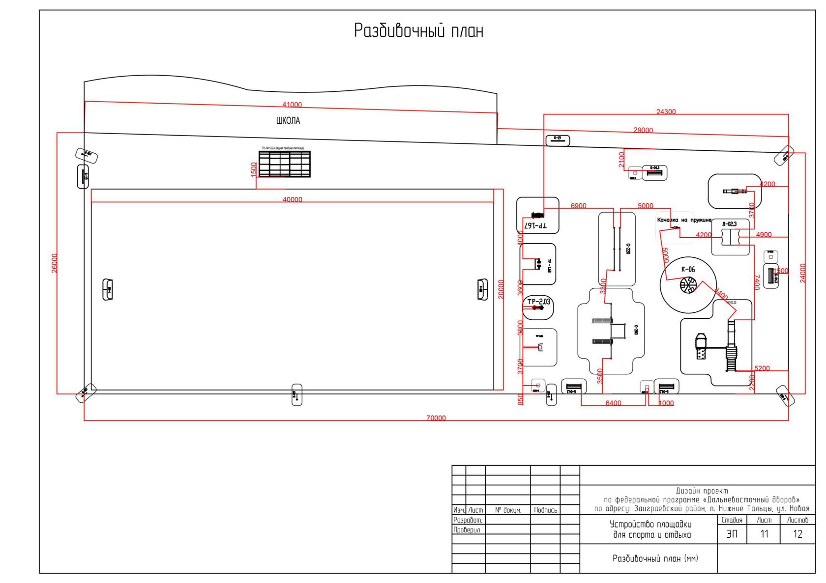
Заиграевский район, п. Нижние Тальцы, ул. Новая
2025-09-10 11:21